Tour!

Gutachterverfahren Umbau Wohnaus Modenapark

Kenndaten
 
Planungs- Bauzeit:  2003-     1.Preis
Auftraggeber: Fa. Lenikus
Adresse: 1030 Wien, Am Modenapark
Bild
 
Maßnahmenkatalog zur vorgeschlagenen Neugestaltung und Aufwertung des Baulückenbestandes
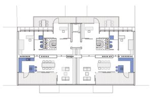
Eingangsbereich/Stiegenhaus:
  • behindertengerechter Zugang, Rampe bei Hauseingangstür
  • Wegnehmen der Stufen im Eingangsbereich durch Bodenabsenkung
  • behindertengerechter Aufzug
  • durch Ausnutzung der hinteren Baufluchtlinie (12m) rückt das Stiegenhaus inkl. der neuer Stiegenläufe in Richtung Hof hinaus, dadurch zusätzlich verwertbare Fläche von ca. 20m2 WNFL/Geschoß ( 1.ST.-DG1 ca. 120m2)
  • optimale Lichtverhältnisse durch verglastes Stiegenhauses und Liftumwehrung
  • Aufwertung der beengten Foyerbereiche insbesondere im Erdgeschoß
  • Sichtbezug zu begrüntem Innenhof in allen Erschließungsebenen
  • die beiden Wohnungen im EG werden durch eigene Zugangspodeste erschlossen
  • Kinderwagen/Fahrradraumes und Müllraumes im EG (von Straße zugänglich)
  • Technikräume im Kellergeschoß
Bild

 

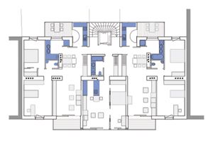
Wohnungen:
  • klare, durchgesteckter Grundrisse in den Regelgeschoßen
  • Durchlässigkeit der Park- und Hofanteile
  • Situierung der Naßräume um die bestehenden Abfallstränge
  • alle Zimmer sind zentral begehbar
  • Flexibilität in den Grundrissen durch Schiebewände zwischen den beiden straßenseitigen Räumen
  • weiters durch diverse Möglichkeiten der Raumaufteilung (franz. Diele) bzw. durch Zusammenlegung zweier Wohnungen
  • durch Ausnutzung der Erkerbestimmung (§83) Schaffung von einem Wintergarten (hofseitig), inkl. Balkonfläche von 7.5m2
  • den beiden Wohnungen im EG werden Eigengärten zugeteilt
  • Regelgeschoßwohnung als Flat, mittlere Wohnung als Maissonette (auch als Garconiere möglich/abhängig vom Wohnungsleerstand)

Bild

 

Dachgeschoß:
  • die Ausnutzung der BK IV, 21m und dem § 81 (Erhöhung um 150cm) ermöglicht einer zweiten Dachgeschoßebene
  • für zwei je 170 m2 Mais.wohnungen mit Penthousecharakter sowie großen Dachterrassen zum Modenapark
  • das zweite Dachgeschoß der Maissonetten wird nur über den Aufzug erschlossen
  • es kann somit ein Treppenlauf der Hauptstiege zugunsten hochwertiger Mehrnutzfläche im zweiten Dachgeschoß entfallen

 
Fassade:

    Straßenseitig:
  • Fenstererneuerung unter Beibehaltung der bestehenden Öffnungen
  • im Mittelerker wird die Verbreiterung der Fensteröffnungen zur besseren Belichtung der tiefen Aufenthaltsräume vorgeschlagen
  • Farbtransluzente Glasbrüstungen an den Balkonen
  • Schaffung einer Dachterrasse über dem bestehenden Erker für die mittlere Maissonette
  • Neudefinierung des Eingangsbereiches durch Nischenbildung
  • der neue DachAbschluss erfolgt durch einen über die gesamte Hauslänge weit ausladenden teilweise perforiertem Dachschirm als Sonnen- und Regenschutz
  • die Verringerung der Heizlastwerte bei Nachkriegsbauten durch die Aufbringung einer Vollwärmeschutzfassade wäre sinnvoll
    Hofseitig:
  • Verglasung der neuen Treppenläufe zur besseren Belichtung des Stiegenhauses sowie einem großzügigen Hofbezug
  • die vorhandenem Öffnungsformate werden dem jeweiligem Funktionsbedarf der Nutzräume angepasst, geringfügig verändert
  • unter Ausnutzung der Bebauungsbestimmungen werden großzügige, ostorientierte Frühstücksbalkone in Kombination mit Essveranden/Wintergärten vorgeschlagen
  • Die Änderungsvorschläge für die Fassaden verstehen sich als kostengünstige Minimalkorrekturen im Sinne einer Aufwertung des Erscheinungsbildes der Baulücke hin zu einer zeitgemäßen Sprache.
Bild
 
home   suche Seitenanfang!